R ALAKÚ 2 SZINTES 317M2-ES + 114 M2 TERASZ CAPSULOVE CSÚCSMODELL

  • Kategória: modul mobilház
  • Bruttó alapterület: 316 m²
  • Szobák száma: 7 + nappali
  • Fürdők száma: 3

EXTRA FELSZERELTSÉG

  • lapostető
  • minimal otthon
  • prémium ablakok
  • prémium beltéri ajtók
  • prémium burkolatok
  • prémium inverteres hűtő-fűtő berendezés

PuzzleHome tudnivalók

Capsulove R alakú, kétszintes villa (316,7 m² lakótér • 113,8 m² terasz) – CSÚCSMODELL

A Capsulove R alakú, 2 szintes villa a termékcsalád legimpozánsabb, zászlóshajó modellje.
R-formájú alaprajzával, monumentális tereivel és prémium műszaki tartalmával luxus resortok, birtokfejlesztések és high-end családi villák ikonikus központi eleme lehet.
A Capsulove rendszer Európában exkluzívan a Kész Mobilházaknál érhető el – referenciáink a kontinensen túl Dél-Afrikában és Koreában is futnak.

Összterület, számolt adatok:

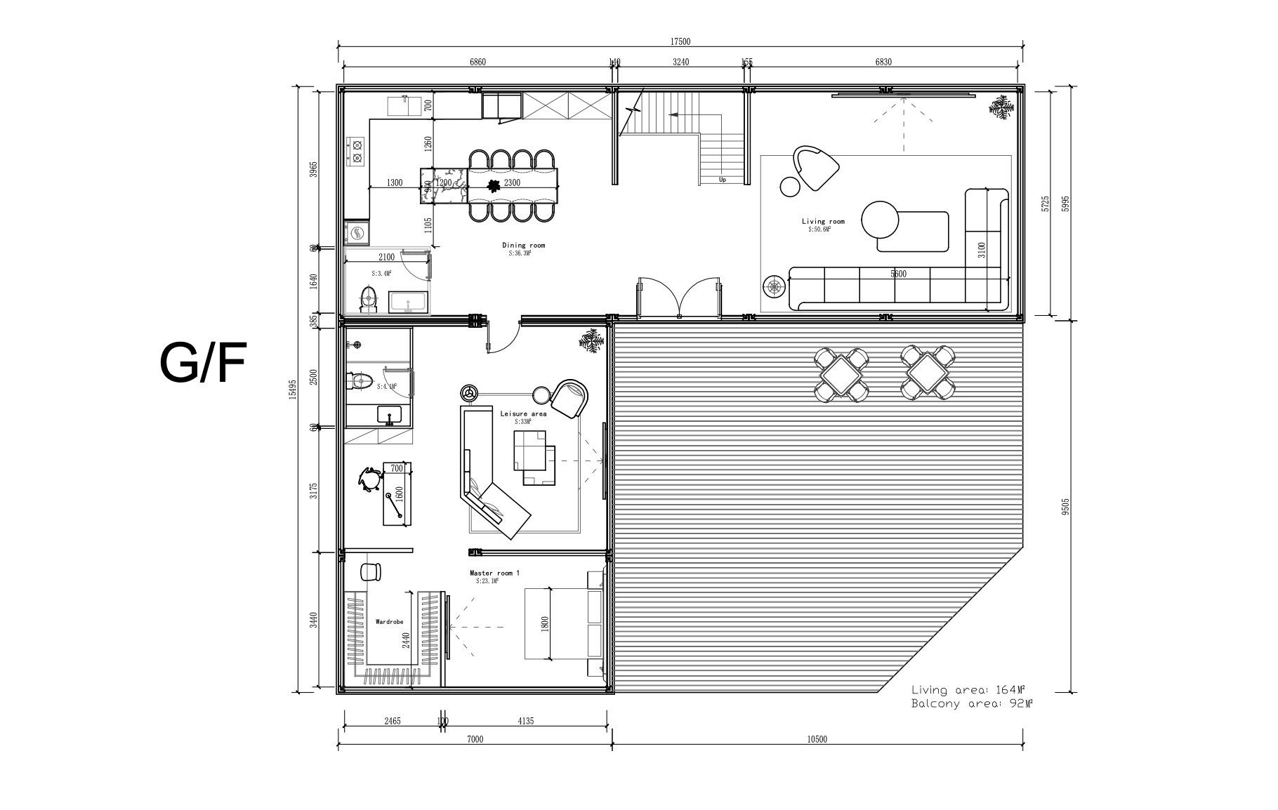
  • Földszint: 170,0 m² lakótér + 92,0 m² terasz
  • Emelet: 146,7 m² lakótér + 21,8 m² terasz
  • Összes lakótér: 316,7 m² • Összes terasz: 113,8 m²
  • Becsült kabinsúly: ~49–55 t (≈ 155–175 kg/m² lakótér alapján, felszereltségtől függően)

A két szint nagyvonalú, dupla belmagasságú közösségi zónákat és privát lakosztályokat foglal magában;
a belső lépcső lehet hagyományos, vagy integrált elektromos megoldással (opció).
A homlokzaton dizájner alumínium díszítőelemek és okos RGB hangulatvilágítás gondoskodik a kortárs, esti fényélményről.
A Capsulove ERSD koncepció szerint az épület gépészete rejtett, gyorsan hozzáférhető, így a karbantartás és bővítés éveken át egyszerű marad.

Kiemelt előnyök:

  • Csúcskategóriás kétszintes, R alakú alaprajz ikonikus megjelenéssel
  • 316,7 m² bőséges lakótér + 113,8 m² panorámás teraszfelület
  • ERSD – rejtett gépészet, gyors szerviz és bővíthetőség
  • Okos világítás (hangvezérlés, RGB), napelem-ready villamos rendszer
  • Alumínium nyílászárók LOW-E dupla üvegezéssel a hatékonyságért és a csendért
  • Konténerre optimalizált csomagolás – projekt szintű, több konténerből álló logisztika

Méretek és szerkezeti adatok

Paraméter Érték
Földszinti lakótér 170,0 m²
Földszinti terasz 92,0 m²
Emeleti lakótér 146,7 m²
Emeleti terasz 21,8 m²
Összes lakótér 316,7 m²
Összes terasz 113,8 m²
Becsült kabinsúly ~49–55 t (felszereltségfüggő)
Teherhordó váz Acél zártszelvény, 3 mm falvastagság
Válaszfalak Acéllemez panelek
Homlokzati fal EPS / kőzetgyapot szendvicspanel, 75 mm szigeteléssel
Padló rétegrend Acéllemez 3 mm + szálcement 18 mm + prémium burkolat (~15 mm)
Tető rétegrend Acéllemez 3 mm + EPS szendvics 50 mm
Nyílászárók Alumínium keret, LOW-E dupla üveg (6 mm + 12A + 6 mm)
Ajtók Acél / üveg kivitel
Szélállóság 0,6 kN/m² (alap) • projektre erősíthető
Földrengésállóság 7 fokozat
Tűzállóság A osztály / 120 perc
Padló teherbírás 3 kN/m²
Tervezett élettartam 50 év

Felszereltségi javaslat (a csúcsmodellhez illesztve)

  • Kabin – többmodulos, kétszintes összeállítás
  • Külső alumínium dekoráció integrált RGB világítással
  • Belső „home style” design – prémium világítási körök és LED-vezérlés
  • Zárható bejárati ajtók (acél/üveg), biztonsági vasalatokkal
  • Több fürdőmodul (projektfüggő, master + vendégzóna javasolt)
  • Pantry / háztartási blokk, gépészeti szerviz-hozzáférésekkel
  • Belső lépcső (opció: integrált elektromos lépcső / liftakna előkészítés)
  • Kézi vagy motoros sötétítők, árnyékolás-előkészítés a teraszokhoz
  • Napelem-kompatibilis elektromos körök, okosotthon interfészek

Logisztika és telepítés

Tétel Becsült adat Megjegyzés
Konténerszükséglet ~4–6 × 40HQ Felszereltségtől és csomagolási kiosztástól függ
Szállítás Konténerre optimalizált, lapra szerelt EU-szintű exkluzív hozzáférés a Kész Mobilházaknál
Helyszíni szerelés projektfüggő (többszintes összeállítás) ERSD kialakítás → gyors szervizelés és üzembe helyezés

Több mint szállás – teljes értékű üdülőélmény

CAPSULOVE-Stage házai nem egyszerű szálláshelyek, hanem egy új életstílus részei.
Minden részletük azt szolgálja, hogy a pihenés és a kényelem egyensúlyba kerüljön a természet közelségével.

Az üdülőkomplexum a klasszikus villáktól eltérően komplex szolgáltatásokat is kínál:
recepciós központ, hangulatos kávézó, modern edzőterem, panorámás hegyoldali étterem, elegáns irodák és exkluzív klubházak teszik teljessé az élményt.

Itt nem csupán megszállni lehet – itt élmény marad minden pillanat.

Capsulove – Egyedi moduláris házak és villák

Üzleti, üdülési és személyes célra tervezett, modern moduláris épületek, ahol a technológia és a természet harmóniája találkozik. A Capsulove rendszert Európában kizárólag a Kész Mobilházak kínálja – referenciáink a kontinensen túl Dél-Afrikában és Koreában is bizonyítottak.

Villámgyors logisztika: egy 40 lábas konténerben akár 5×18 m² modul, vagy 4×25 m² egység is szállítható. A lapra-szerelt megoldás a helyszíni szerelést napokra rövidíti és a szállítási költséget akár 70%-kal csökkenti.

Mit csinálunk

Testreszabható moduláris villákat, házakat és épületeket tervezünk és gyártunk – lakó- és kereskedelmi funkcióra egyaránt: üdülők, Airbnb, irodák, klinikák, iskolák, modern birtokfejlesztések.

Konténerre optimalizált rendszerünknek köszönhetően egy 40HQ egység teljes modulcsomagot képes szállítani. A megvalósítást kulcsrakészig támogatjuk: területrendezés, engedélyeztetés, vám, helyi szállítás, helyszíni szerelés.

Fő előnyök, röviden

  • Teljesen testreszabható külső-belső
  • Gyors telepítés: 4 fős csapat, jellemzően 4–5 nap
  • ERSD – rejtett gépészet, gyors karbantartás
  • Napelem-kompatibilis elektromos hálózat
  • Okos világítás (hangvezérlés, RGB)
  • Költséghatékony konténeres szállítás

 

Technológia – ERSD koncepció

Minden Capsulove modell az ERSD tervezési elv szerint készül: a cső- és kábelhálózat nem a falakban fut, hanem kivehető burkolat mögött, így a rendszer esztétikus, és a karbantartás/csere perc-pontosan végezhető. A külső díszítőelemek a design mellett a teljes gépészet védelmét is ellátják.

Okos világítás & energia

  • Előtelepített okos fényvezérlés, hangvezérlésre kész
  • RGB/multiszín hangulatvilágítás
  • Napelem-ready áramköri kiosztás

Komplett gépészet

  • Előre telepített víz-, szellőzés-, klímarendszer
  • Alumínium mennyezeti kábelcsatornák
  • Gyors szerelhetőség, hosszú élettartam

 

Szállítás és helyszíni telepítés

Paraméter Capsulove megoldás Előny
Konténer-kapacitás 40HQ: 5×18 m² modul vagy 4×25 m² egység Kevesebb fuvar, alacsonyabb költség
Telepítés 4–5 nap (4 fős csapattal) Gyors nyitás/üzemindítás
Költségoptimalizálás Lapra szerelt, ERSD hozzáférések ≈70%-kal kedvezőbb logisztika
Nemzetközi EU exkluzív, Dél-AfrikaKorea projektek Bizonyított rendszer, skálázható

 

Alkalmazási területek

Üdülő & vendéglátás

Prémium üdülővillák, butikhotel-szobák, privát vendéglakosztályok. Instagram-kompatibilis terek, galaxis ihlette fényélménnyel.

Lakó & közösségi

Lakóparkok, közösségi épületek, klubházak, irodák, klinikák, iskolai egységek – egy rendszer, végtelen kombináció.

Modellek és testreszabás

Több mint 10 alapmodell érhető el 1–4 hálószoba és emeletes opciókkal. A Capsulove modulok külső dizájnja, mérete és belső elrendezése teljesen személyre szabható, hogy a környezethez és a funkcióhoz tökéletesen illeszkedjen.

  • 1–3 szintes kialakítások, lakó + kereskedelmi kombinációk
  • Motoros ablakok, integrált elektromos lépcső opció
  • ERSD: könnyű karbantartás, gyors csere

 

Miért ellenállhatatlan? – Exkluzív hozzáférés

Európában kizárólag a Kész Mobilházaknál érhető el a Capsulove moduláris rendszer. A kontinensen túl Dél-Afrikában és Koreában is futnak projektjeink – ez a nemzetközi tapasztalat garantálja Önnek a biztonságot, a minőséget és a skálázhatóságot.

Egyediség, amire büszke lehet: minden épületet az Ön márkájára, üzemeltetési folyamataira és vendégélményére hangolunk – a látványtól a karbantartásig.

 

Miért válassza a Capsulove-ot?

  • Teljes testreszabás – homlokzat, belső, alaprajz
  • Ultra gyors megvalósítás – napokban mérhető szerelés
  • ERSD – rejtett gépészet, villámgyors szerviz
  • Napelem-kompatibilis energiaelosztás
  • Konténerre optimalizált szállítás
  • EU exkluzivitás Kész Mobilházaknál

Kinek ajánljuk?

  • Üdülőfejlesztőknek, birtok- és resort-tulajdonosoknak
  • Airbnb / szobakiadás bővítéséhez
  • Vállalati üdülők, tréning- és irodakomplexumok
  • Gyorsan skálázható közösségi vagy oktatási terek

 

Küldetésünk

Forradalmasítani a házépítést: a klasszikus kivitelezést precíz gyári előkészítéssel és napok alatt elvégezhető helyszíni összeszereléssel váltjuk ki. Így az építési idő hónapokról napokra csökken, a minőség pedig konzisztens marad – minden modulnál.

Opcionális A:
Otthon stílusú bútorozási referencia

Opcionális B:
Teljes RGB világítás / lámpatest és egyedi bútorcsomag – csomagár

Miért piacvezető a CAPSULOVE?

CAPSULOVE a moduláris lakhatás jövőjét hozza el forradalmi
Space House koncepciójával.

A legmodernebb formatervezés, az intelligens technológia és a megfizethető ár egyesítésével
új korszakot nyitunk a kompakt, fenntartható és stílusos otthonok világában.

Egy CAPSULOVE ház nem csupán egy épület –
egy új életforma, ahol minden négyzetcentiméter a kényelmet és a szabadságot szolgálja.

Amiért ügyfeleink minket választanak:

  • Nincsenek rejtett költségek – Átlátható, előre kalkulált árak, meglepetések nélkül.
  • Személyre szabott megoldások – Szakértői tervezőcsapatunk segít megalkotni a tökéletes, egyedi RGB moduláris kapszulaházat.
  • Azonnal beköltözhető – Gyors és precíz telepítés, hogy Ön akár néhány napon belül birtokba vehesse új otthonát.

„A jövő otthona – ma.”

Új: „Szereld magad” csomag – milliókat spórolhatsz

A Capsulove mostantól „szereld magad” akcióban is elérhető: a komplett épület szétszerelve és gondosan becsomagolva érkezik, így a helyszíni összeállítást saját csapatoddal is elvégezheted – ezzel jelentős, akár több millió forintos megtakarítást érve el.

Mivel fókuszunk teljes európai országokra kiterjed, a logisztika és a költségek célországonként eltérhetnek. Jó hír, hogy ez a csomag Magyarországon is elérhető, így hazai projektekhez is ideális választás.

Kérjen exkluzív Capsulove ajánlatot

Beszéljük át a telek adottságait, a kívánt készültségi szintet és az üzemeltetési célokat – 48 órán belül testreszabott koncepciót és ütemtervet adunk.

Solar House Hungary Zrt. – Kész Mobilházak •
www.keszmobilhazak.hu •
info@keszmobilhazak.hu

 

Megjegyzés: a fenti műszaki és logisztikai adatok a Capsulove standard rendszerspecifikációiból és a megadott területadatokból tervezői becslésként készültek. A véglegesítéshez javasolt helyszín- és terhelési követelmények egyeztetése,
valamint a részletes műszaki dokumentáció igénylése:
info@keszmobilhazak.hu.

 

Kp Sales House Kft
Bemutatóterem: 2316. Tököl, Vince Tanya (ügyfélszolgálati iroda)
Ügyfél referens: Horváth Zsolt
Email:info@keszmobilhazak.hu
Telefonszám: +36 / 70 353 5383
Facebook: https://www.facebook.com/keszmobilhazak

Alaprajz

R ALAKÚ 170 M2 ALAPRAJZ + 92 M2 TERASZ

R ALAKÚ 146,7 M2 EMELETI ALAPRAJZ + 21,8 M2 TERASZ

Video