L ALAKÚ 101.5 M2-ES 1-5 HÁLÓSZOBÁS MODULÁRIS CAPSULOVE VILLA
- Kategória: modul mobilház
- Nettó alapterület: 90 m²
- Bruttó alapterület: 101.5 m²
- Szobák száma: 4-5
- Fürdők száma: 2
EXTRA FELSZERELTSÉG
- hűtő-fűtőrendszer
- lapostető
- minimal otthon
- prémium ablakok
- prémium beltéri ajtók
- prémium burkolatok
PuzzleHome tudnivalók
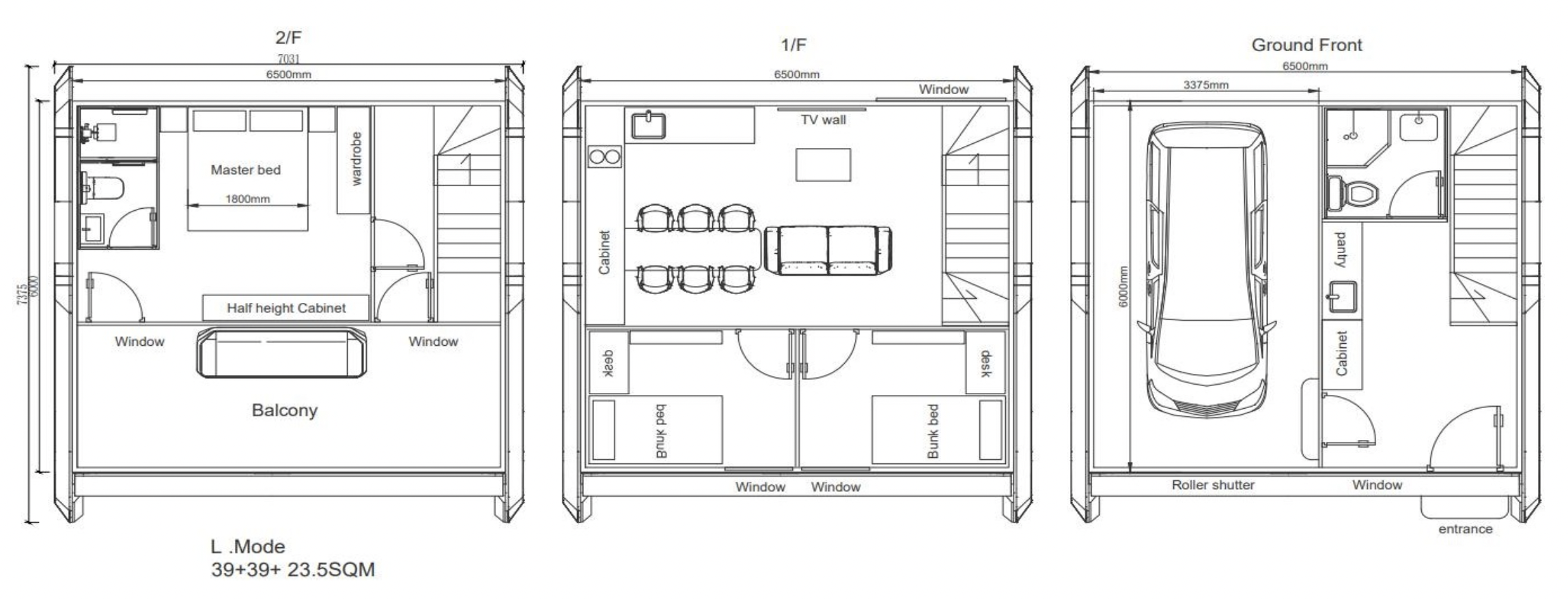
Capsulove L modell (90 m² • 1–5 hálószoba)
A Capsulove L modell a sorozat zászlóshajója – egy igazi luxusvilla, amelyet azoknak terveztünk, akik nem szeretnének kompromisszumot kötni tér, stílus és minőség terén.
A 90 m²-es alapterület rugalmasan alakítható 1–5 hálószobás elrendezésben, így ideális választás akár többgenerációs családok számára is. A dupla belmagasságú lakóterek elegáns, tágas hangulatot biztosítanak, míg az opcionális liftakna és a dizájner homlokzati elemek a modern életstílus legmagasabb szintjét képviselik.
A külső megjelenéshez választható RGB-hangulatvilágítás teszi a házat igazán egyedivé és különlegessé, akár nappali, akár esti környezetben.

A modell 50 év szerkezeti garanciával készül, és világszerte szállítható – a Capsulove rendszerekhez hasonlóan standard 40HQ konténerben, biztonságos, költséghatékony logisztikával.
Kiemelt előnyök:
- Luxus kialakítás, dupla belmagasság, prémium anyagok
- Teljesen testreszabható belső elrendezés (1–5 hálószoba)
- 50 év szerkezeti garancia
- Világszintű szállítás – konténerre optimalizált rendszer
- Opcionális lift, homlokzati RGB világítás
- Kabin: 1 készlet
- Külső alumínium díszítőelemek beépített világítással: 1 készlet
- Belső, otthon stílusú design elemek világítással: 1 készlet
- Zárható ajtó: 1 db
- 3 az 1-ben fürdőszoba (WC + zuhany + mosdó): 2 készlet
- LED vezérlőberendezés: 1 készlet
- Konyhasarok / kis konyha: 1 készlet
- Belépő lépcső: 1 db
- Kézi sötétítő függönyök: 1 készlet
- Külső méret: Hossz: 7 m × Szélesség: 7,4 m × Magasság: 9,9 m
- Belső méret: Hossz: 6 m × Szélesség: 6,5 m × Magasság: 2,5 m
- Kabin tömege: 15 400 kg
- Acélszerkezet: zártszelvény (falvastagság: 3 mm)
- Válaszfal: acéllemez
- Fal: EPS szendvicspanel vagy kőzetgyapot panel (vastagság: 75 mm)
- Padló: 3 mm acéllemez + 18 mm cementkötésű farostlemez + 15 mm szőnyegburkolat a teljes padlófelületen
- Tető: 3 mm acéllemez + 50 mm vastag EPS szendvicspanel
- Ablakok: alumínium ötvözetű ablakkeret + (6 mm + 12A + 6 mm) dupla rétegű, LOW-E hőszigetelt edzett üveg
- Ajtók: acélajtó / üvegajtó
- Szélállóság: 0,6 kN/m²
- Földrengésállóság: 7-es fokozat
- Tűzállóság: A osztály / 120 perc
- Padló teherbírása: 3 kN/m²
- Élettartam: 50 év
- 40 lábas HQ konténerbe rakodható egységek száma: 0,8 szett
Több mint szállás – teljes értékű üdülőélmény
A CAPSULOVE-Stage házai nem egyszerű szálláshelyek, hanem egy új életstílus részei.
Minden részletük azt szolgálja, hogy a pihenés és a kényelem egyensúlyba kerüljön a természet közelségével.
Az üdülőkomplexum a klasszikus villáktól eltérően komplex szolgáltatásokat is kínál:
recepciós központ, hangulatos kávézó, modern edzőterem, panorámás hegyoldali étterem, elegáns irodák és exkluzív klubházak teszik teljessé az élményt.
Itt nem csupán megszállni lehet – itt élmény marad minden pillanat.

Capsulove – Egyedi moduláris házak és villák
Üzleti, üdülési és személyes célra tervezett, modern moduláris épületek, ahol a technológia és a természet harmóniája találkozik. A Capsulove rendszert Európában kizárólag a Kész Mobilházak kínálja – referenciáink a kontinensen túl Dél-Afrikában és Koreában is bizonyítottak.
Villámgyors logisztika: egy 40 lábas konténerben akár 5×18 m² modul, vagy 4×25 m² egység is szállítható. A lapra-szerelt megoldás a helyszíni szerelést napokra rövidíti és a szállítási költséget akár 70%-kal csökkenti.
Mit csinálunk
Testreszabható moduláris villákat, házakat és épületeket tervezünk és gyártunk – lakó- és kereskedelmi funkcióra egyaránt: üdülők, Airbnb, irodák, klinikák, iskolák, modern birtokfejlesztések.
Konténerre optimalizált rendszerünknek köszönhetően egy 40HQ egység teljes modulcsomagot képes szállítani. A megvalósítást kulcsrakészig támogatjuk: területrendezés, engedélyeztetés, vám, helyi szállítás, helyszíni szerelés.
Fő előnyök, röviden
- Teljesen testreszabható külső-belső
- Gyors telepítés: 4 fős csapat, jellemzően 4–5 nap
- ERSD – rejtett gépészet, gyors karbantartás
- Napelem-kompatibilis elektromos hálózat
- Okos világítás (hangvezérlés, RGB)
- Költséghatékony konténeres szállítás
Technológia – ERSD koncepció
Minden Capsulove modell az ERSD tervezési elv szerint készül: a cső- és kábelhálózat nem a falakban fut, hanem kivehető burkolat mögött, így a rendszer esztétikus, és a karbantartás/csere perc-pontosan végezhető. A külső díszítőelemek a design mellett a teljes gépészet védelmét is ellátják.
Okos világítás & energia
- Előtelepített okos fényvezérlés, hangvezérlésre kész
- RGB/multiszín hangulatvilágítás
- Napelem-ready áramköri kiosztás
Komplett gépészet
- Előre telepített víz-, szellőzés-, klímarendszer
- Alumínium mennyezeti kábelcsatornák
- Gyors szerelhetőség, hosszú élettartam
Szállítás és helyszíni telepítés
| Paraméter | Capsulove megoldás | Előny |
|---|---|---|
| Konténer-kapacitás | 40HQ: 5×18 m² modul vagy 4×25 m² egység | Kevesebb fuvar, alacsonyabb költség |
| Telepítés | 4–5 nap (4 fős csapattal) | Gyors nyitás/üzemindítás |
| Költségoptimalizálás | Lapra szerelt, ERSD hozzáférések | ≈70%-kal kedvezőbb logisztika |
| Nemzetközi | EU exkluzív, Dél-Afrika, Korea projektek | Bizonyított rendszer, skálázható |
Alkalmazási területek
Üdülő & vendéglátás
Prémium üdülővillák, butikhotel-szobák, privát vendéglakosztályok. Instagram-kompatibilis terek, galaxis ihlette fényélménnyel.
Lakó & közösségi
Lakóparkok, közösségi épületek, klubházak, irodák, klinikák, iskolai egységek – egy rendszer, végtelen kombináció.
Modellek és testreszabás
Több mint 10 alapmodell érhető el 1–4 hálószoba és emeletes opciókkal. A Capsulove modulok külső dizájnja, mérete és belső elrendezése teljesen személyre szabható, hogy a környezethez és a funkcióhoz tökéletesen illeszkedjen.
- 1–3 szintes kialakítások, lakó + kereskedelmi kombinációk
- Motoros ablakok, integrált elektromos lépcső opció
- ERSD: könnyű karbantartás, gyors csere
Miért ellenállhatatlan? – Exkluzív hozzáférés
Európában kizárólag a Kész Mobilházaknál érhető el a Capsulove moduláris rendszer. A kontinensen túl Dél-Afrikában és Koreában is futnak projektjeink – ez a nemzetközi tapasztalat garantálja Önnek a biztonságot, a minőséget és a skálázhatóságot.
Egyediség, amire büszke lehet: minden épületet az Ön márkájára, üzemeltetési folyamataira és vendégélményére hangolunk – a látványtól a karbantartásig.
Miért válassza a Capsulove-ot?
- Teljes testreszabás – homlokzat, belső, alaprajz
- Ultra gyors megvalósítás – napokban mérhető szerelés
- ERSD – rejtett gépészet, villámgyors szerviz
- Napelem-kompatibilis energiaelosztás
- Konténerre optimalizált szállítás
- EU exkluzivitás Kész Mobilházaknál
Kinek ajánljuk?
- Üdülőfejlesztőknek, birtok- és resort-tulajdonosoknak
- Airbnb / szobakiadás bővítéséhez
- Vállalati üdülők, tréning- és irodakomplexumok
- Gyorsan skálázható közösségi vagy oktatási terek
Küldetésünk
Forradalmasítani a házépítést: a klasszikus kivitelezést precíz gyári előkészítéssel és napok alatt elvégezhető helyszíni összeszereléssel váltjuk ki. Így az építési idő hónapokról napokra csökken, a minőség pedig konzisztens marad – minden modulnál.
Opcionális A:
Otthon stílusú bútorozási referencia

Opcionális B:
Teljes RGB világítás / lámpatest és egyedi bútorcsomag – csomagár

Miért piacvezető a CAPSULOVE?
A CAPSULOVE a moduláris lakhatás jövőjét hozza el forradalmi
Space House koncepciójával.
A legmodernebb formatervezés, az intelligens technológia és a megfizethető ár egyesítésével
új korszakot nyitunk a kompakt, fenntartható és stílusos otthonok világában.
Egy CAPSULOVE ház nem csupán egy épület –
egy új életforma, ahol minden négyzetcentiméter a kényelmet és a szabadságot szolgálja.
Amiért ügyfeleink minket választanak:
- Nincsenek rejtett költségek – Átlátható, előre kalkulált árak, meglepetések nélkül.
- Személyre szabott megoldások – Szakértői tervezőcsapatunk segít megalkotni a tökéletes, egyedi RGB moduláris kapszulaházat.
- Azonnal beköltözhető – Gyors és precíz telepítés, hogy Ön akár néhány napon belül birtokba vehesse új otthonát.
„A jövő otthona – ma.”
Új: „Szereld magad” csomag – milliókat spórolhatsz
A Capsulove mostantól „szereld magad” akcióban is elérhető: a komplett épület szétszerelve és gondosan becsomagolva érkezik, így a helyszíni összeállítást saját csapatoddal is elvégezheted – ezzel jelentős, akár több millió forintos megtakarítást érve el.
Mivel fókuszunk teljes európai országokra kiterjed, a logisztika és a költségek célországonként eltérhetnek. Jó hír, hogy ez a csomag Magyarországon is elérhető, így hazai projektekhez is ideális választás.
Kérjen exkluzív Capsulove ajánlatot
Beszéljük át a telek adottságait, a kívánt készültségi szintet és az üzemeltetési célokat – 48 órán belül testreszabott koncepciót és ütemtervet adunk.
Solar House Hungary Zrt. – Kész Mobilházak •
www.keszmobilhazak.hu •
info@keszmobilhazak.hu
Kp Sales House Kft Bemutatóterem: 2316. Tököl, Vince Tanya (ügyfélszolgálati iroda) Ügyfél referens: Horváth Zsolt Email:info@keszmobilhazak.hu Telefonszám: +36 / 70 353 5383 Facebook: https://www.facebook.com/keszmobilhazak