I ALAKÚ 42 ÉS 72 M2-ES MINI MARKET
- Kategória: modul mobilház
- Bruttó alapterület: 42 -72 m²
- Szobák száma: 1-2
EXTRA FELSZERELTSÉG
- lapostető
- minimal otthon
- prémium ablakok
- prémium beltéri ajtók
- prémium burkolatok
- prémium inverteres hűtő-fűtő berendezés
PuzzleHome tudnivalók
Miért válassza a CAPSULOVE Moduláris Kereskedelmi Komplexumot?
A CAPSULOVE Moduláris Kereskedelmi Komplexum a jövő városi fejlesztéseinek új mércéje.
Teljes mértékben testreszabható, látványos és gyorsan megvalósítható építészeti megoldás,
amely ötvözi a modern technológiát és a fenntartható gondolkodást.
A rendszer egész Európában kizárólag a Kész Mobilházaknál érhető el.
🔹 Teljesen személyre szabható kialakítás
Minden részlet – legyen szó üzletekről, éttermekről, irodákról vagy közösségi terekről –
az Ön fejlesztési elképzeléseihez igazítható. A belső elrendezés, anyaghasználat és funkcionális kiosztás mind a befektető igényeire szabható.

⚡ Villámgyors kivitelezés
Egy jól összehangolt, tapasztalt kivitelezőcsapat átlagosan 30 nap alatt képes a teljes komplexumot
telepíteni – beleértve a gépészetet, burkolatokat és belső kialakítást.
A moduláris szerkezet révén azonnali üzembe helyezés és gyors megtérülés érhető el.
🏙️ Több mint építés – fejlesztési platform
A CAPSULOVE nem csupán egy moduláris rendszer, hanem egy komplex fejlesztési megoldás,
amely képes többlakásos, vegyes funkciójú épületek létrehozására.
A rendszerben egyaránt helyet kaphatnak üzletek, kávézók, éttermek, irodák és mosdók –
egységes, elegáns struktúrában.
📐 Méret és forma – a maximális rugalmasság jegyében
Minden CAPSULOVE modul mérete, alaprajza és funkciója szabadon variálható.
A modulok illeszkednek a különböző telekformákhoz, városi környezetekhez és funkcionális igényekhez, így minden projekt teljesen egyedi lehet.
🌆 Nagyszabású fejlesztésekhez tervezve
Ideális megoldás sétálóutcák, bevásárlónegyedek, turisztikai központok vagy
önkormányzati fejlesztések számára.
A moduláris felépítés lehetővé teszi a fokozatos bővítést és a rugalmas skálázást,
így a projekt mérete mindig a befektetési tervhez igazítható.
🌿 Környezetbarát és esztétikus
A külső design, a színek és az anyaghasználat illeszkedik a helyi környezethez és építészeti stílushoz.
Az energiatakarékos technológiák, az újrahasznosítható szerkezeti elemek és a
napelem-kompatibilis villamos hálózat a fenntarthatóság garanciái.
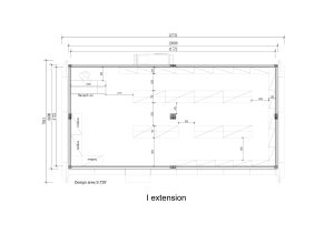
CAPSULOVE I-Extension modellek (42 m² és 72 m²)
Moduláris, bővíthető, gyorsan telepíthető egységek üzletnek, irodának, bemutatóteremnek vagy akár prémium lakótérnek.
A CAPSULOVE I-Extension család két kész elrendezésben érhető el: 42 m² és 72 m².
- Rugalmas belsőépítészet – moduláris pultok, polcrendszer, recepció/opendesk
- Nagy üvegportálok – látványos kirakat és természetes fény
- Gépészeti előkészítés – klíma, elektromos és IT kiállások
- Konténerre optimalizált szállítás, gyors helyszíni telepítés
ÚJ – I-Extension 42 m²
Kompakt, mégis reprezentatív egyterű modul teljes szélességű üvegportállal –
recepcióval, pultokkal és rugalmas polcrendszerrel. Ideális pop-up üzletnek,
bemutatóteremnek vagy open office munkatérnek.

| Méret | Érték |
|---|---|
| Külső hossz (kb.) | ≈ 12,7 m |
| Külső szélesség (kb.) | ≈ 3,5–4,6 m* |
| Belmagasság | ≈ 2,6–2,8 m |
| Hasznos alapterület | ~ 42 m² |
Fő elemek
- Teljes szélességű üvegportál (fix üveg + üvegajtó)
- Fogadópult / recepció zóna
- Moduláris polc- és pultelrendezés
- Gépészeti előkészítések: klíma, elektromos, IT
Ajánlott felhasználás
- Showroom / értékesítési pont
- Könnyű vendéglátás (kávé- vagy juice-bar előkészítéssel)
- Ügyféltér + tárgyaló egyben
* A külső szélesség a választott homlokzati és szigetelési rétegrendtől kis mértékben eltérhet.
I-Extension 72 m²
Tágas, többfunkciós tér központi oszlopokkal és nagy üvegfelületekkel.
Kiváló megoldás bemutatóteremnek, prémium irodának,
edző/jóga stúdiónak vagy kisebb üzlethelyiségnek.

| Méret | Érték |
|---|---|
| Külső hossz (kb.) | ≈ 12,7 m |
| Külső szélesség (kb.) | ≈ 6,9–7,1 m* |
| Belmagasság | ≈ 2,6–2,8 m |
| Hasznos alapterület | ~ 72 m² |
Fő elemek
- Nagyvonalú egyterű belső – rugalmas berendezhetőség
- Üvegportál és teljes hosszban futó kirakat
- Központi gépészeti és elektromos csomópont
- Igény szerint teakonyha / minivizesblokk előkészítés
Ajánlott felhasználás
- Prémium showroom / értékesítési tér
- Jóga / edző stúdió, közösségi tér
- Ügyfélszolgálat, iroda, tárgyaló
* A szélességi méret a kiválasztott rétegrenddel és homlokzati kialakítással együtt értendő.
fejlesztőknek és városrendezési szakembereknek kínál megoldást, akik gyorsan, látványosan és hosszú távon megtérülően szeretnének modern, fenntartható közösségi és kereskedelmi tereket létrehozni.
Kérje a részletes dokumentációt és műszaki leírást e-mailben:
info@keszmobilhazak.hu
Kp Sales House Kft Bemutatóterem: 2316. Tököl, Vince Tanya (ügyfélszolgálati iroda) Ügyfél referens: Horváth Zsolt Email:info@keszmobilhazak.hu Telefonszám: +36 / 70 353 5383 Facebook: https://www.facebook.com/keszmobilhazak