DI-X2 ALAKÚ 100,4 M2-ES 4 HÁLÓSZOBÁS CAPSULOVE VILLA
- Kategória: modul mobilház
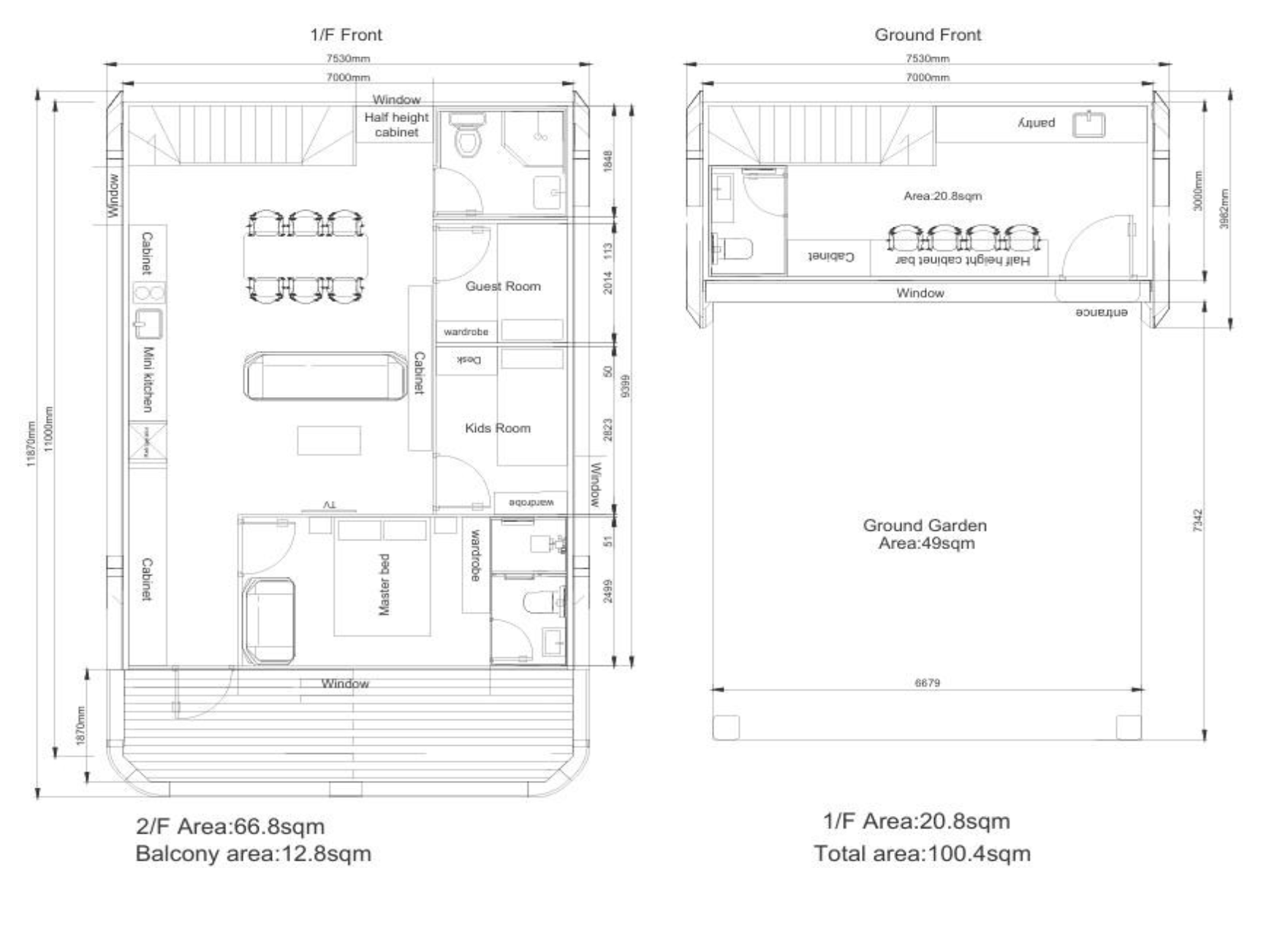
- Bruttó alapterület: 100,4 m²
- Szobák száma: 4
- Fürdők száma: 3
EXTRA FELSZERELTSÉG
- acélszerkezetes kèszház
- minimal otthon
- prémium ablakok
- prémium beltéri ajtók
- prémium burkolatok
- prémium inverteres hűtő-fűtő berendezés
PuzzleHome tudnivalók
Capsulove DI X2 Villa (100,4 m² • prémium acélvázas villa)
A Capsulove DI X2 a moduláris építés új dimenzióját képviseli – egy 100,4 m²-es luxusvilla, amelyet azoknak terveztünk, akik a technológiát, az eleganciát és a tartósságot egyetlen modern formában keresik. A villa az acélszerkezetes, tájfunálló konstrukció és az exkluzív, előregyártott design találkozása: erős, stílusos, és akár extrém körülmények között is otthonos.
A DI X2 modell egyetlen egységből álló, Capsulove kabin rendszerre épül, amely luxus lakókomfortot biztosít – a három teljes értékű fürdőmodullal (WC + zuhany + mosdó), tágas belső terekkel, beépített világítással, kamrával és lépcsőmodullal. A belső design modern „home style” megoldásokkal, alumínium dekorációs elemekkel és RGB világítással teszi teljessé a prémium érzetet.
Kiemelt jellemzők:
- 100,4 m²-es hasznos alapterület – prémium, moduláris luxusvilla
- Acél zártszelvény vázszerkezet (3 mm) – tájfun- és földrengésálló kialakítás
- EPS vagy kőzetgyapot szendvicspanel falak – 75 mm hőszigeteléssel
- Kétrétegű LOW-E üvegezésű alumínium nyílászárók (6+12A+6 mm)
- Tűzállóság: A osztály / 120 perc • 50 év élettartam
- Padló teherbírás: 3 kN/m² • Szélállóság: 0,6 kN/m²
- Világszintű szállítás: konténerre optimalizált – 0,8 szett / 40HQ egység
- Teljes belső berendezés: világítás, fürdőmodulok, kamra, függöny, LED-vezérlés
Méretek és szerkezeti adatok
| Paraméter | Érték |
|---|---|
| Külső méret | H 12,0 m × Sz 8,0 m × M 6,6 m |
| Belső méret | H 11,0 m × Sz 7,0 m × M 2,5 m |
| Teljes tömeg | 15 300 kg |
| Teherhordó váz | Acél zártszelvény, 3 mm vastag |
| Falrendszer | EPS / kőzetgyapot szendvicspanel, 75 mm hőszigeteléssel |
| Padló rétegrend | Acéllemez (3 mm) + szálcement lap (18 mm) + szőnyegpadló (15 mm) |
| Tető rétegrend | Acéllemez (3 mm) + EPS szendvicsréteg (50 mm) |
| Nyílászárók | Alumínium keret, dupla üveg (LOW-E, 6mm + 12A + 6mm) |
| Ajtók | Acél vagy üveg kivitel |
| Szélállóság | 0,6 kN/m² |
| Földrengésállóság | 7 fokozat |
| Tűzállóság | A osztály / 120 perc |
| Padló teherbírás | 3 kN/m² |
| Élettartam | 50 év |
| Szállítási egység | 0,8 szett / 40HQ konténer |
Felszereltség
- 3 fürdőmodul (WC + zuhany + mosdó)
- Kamra / Pantry
- Külső alumínium dekoráció integrált világítással
- Belső LED-világítás és LED vezérlő egység
- Zárható acélajtó
- Belépő lépcső és kézi sötétítő függönyök
A DI X2 Capsulove villa a luxus, az energiahatékonyság és a mérnöki precizitás ötvözete.
A 100,4 m²-es élettér teljes egészében gyárban előkészítve érkezik, helyszíni szerelése pedig mindössze néhány napot vesz igénybe.
A modell ideális választás prémium családi házakhoz, üdülőkhöz vagy nemzetközi resort projektekhez.
Felszereltség és műszaki adatok
Alaptartozékok (szettek/elemek)
- Kabin – 1 szett
- Külső alumínium dekorációs elemek beépített világítással – 1 szett
- Belső (standard „home style”) design elemek világítással – 1 szett
- Zárható bejárati ajtó – 1 db
- Fürdőmodul 3 az 1-ben (WC + zuhany + mosdó) – 3 szett
- LED vezérlő egység – 1 szett
- Kamra/pantry – 1 szett
- Belépő lépcső – 1 db
- Kézi sötétítő függönyök – 1 szett
Szerkezet és anyagok részletesen:
| Elem | Műszaki leírás |
|---|---|
| Teherhordó váz | Acél zártszelvény, 3 mm falvastagság |
| Válaszfal | Acéllemez panel |
| Homlokzati/falburok | EPS szendvicspanel vagy kőzetgyapot panel, 75 mm vastagság |
| Padló rétegrend | Acéllemez 3 mm + alap 18 mm szálcement lap + 15 mm szőnyegpadló (összes burkolt területen) |
| Tető rétegrend | Acéllemez 3 mm + EPS szendvics 50 mm |
| Nyílászárók | Alumínium keret, kétrétegű LOW-E edzett üveg (6 mm + 12A légrés + 6 mm) |
| Ajtók | Acélajtó / üvegajtó |
Teljesítmény, minősítések
| Jellemző | Érték |
|---|---|
| Szélállóság | 0,6 kN/m² |
| Földrengés-állóság | 7 fokozat |
| Tűzállóság | A osztály / 120 perc |
| Hasznos teher (padló) | 3 kN/m² |
| Tervezett élettartam | 50 év |
Logisztika
| Tétel | Adat | Megjegyzés |
|---|---|---|
| Rakodási egység (40’ HQ) | ~0,8 szett / konténer | Egy komplett szetthez jellemzően több mint 1 konténer szükséges |
| Szállítási mód | Konténerre optimalizált, lapra szerelt | Költség- és időhatékony kivitelezés |
A modell 50 év szerkezeti garanciával készül, és világszerte szállítható – a Capsulove rendszerekhez hasonlóan standard 40HQ konténerben, biztonságos, költséghatékony logisztikával.
Több mint szállás – teljes értékű üdülőélmény
A CAPSULOVE-Stage házai nem egyszerű szálláshelyek, hanem egy új életstílus részei.
Minden részletük azt szolgálja, hogy a pihenés és a kényelem egyensúlyba kerüljön a természet közelségével.
Az üdülőkomplexum a klasszikus villáktól eltérően komplex szolgáltatásokat is kínál:
recepciós központ, hangulatos kávézó, modern edzőterem, panorámás hegyoldali étterem, elegáns irodák és exkluzív klubházak teszik teljessé az élményt.
Itt nem csupán megszállni lehet – itt élmény marad minden pillanat.

Capsulove – Egyedi moduláris házak és villák
Üzleti, üdülési és személyes célra tervezett, modern moduláris épületek, ahol a technológia és a természet harmóniája találkozik. A Capsulove rendszert Európában kizárólag a Kész Mobilházak kínálja – referenciáink a kontinensen túl Dél-Afrikában és Koreában is bizonyítottak.
Villámgyors logisztika: egy 40 lábas konténerben akár 5×18 m² modul, vagy 4×25 m² egység is szállítható. A lapra-szerelt megoldás a helyszíni szerelést napokra rövidíti és a szállítási költséget akár 70%-kal csökkenti.
Mit csinálunk
Testreszabható moduláris villákat, házakat és épületeket tervezünk és gyártunk – lakó- és kereskedelmi funkcióra egyaránt: üdülők, Airbnb, irodák, klinikák, iskolák, modern birtokfejlesztések.
Konténerre optimalizált rendszerünknek köszönhetően egy 40HQ egység teljes modulcsomagot képes szállítani. A megvalósítást kulcsrakészig támogatjuk: területrendezés, engedélyeztetés, vám, helyi szállítás, helyszíni szerelés.
Fő előnyök, röviden
- Teljesen testreszabható külső-belső
- Gyors telepítés: 4 fős csapat, jellemzően 4–5 nap
- ERSD – rejtett gépészet, gyors karbantartás
- Napelem-kompatibilis elektromos hálózat
- Okos világítás (hangvezérlés, RGB)
- Költséghatékony konténeres szállítás
Technológia – ERSD koncepció
Minden Capsulove modell az ERSD tervezési elv szerint készül: a cső- és kábelhálózat nem a falakban fut, hanem kivehető burkolat mögött, így a rendszer esztétikus, és a karbantartás/csere perc-pontosan végezhető. A külső díszítőelemek a design mellett a teljes gépészet védelmét is ellátják.
Okos világítás & energia
- Előtelepített okos fényvezérlés, hangvezérlésre kész
- RGB/multiszín hangulatvilágítás
- Napelem-ready áramköri kiosztás
Komplett gépészet
- Előre telepített víz-, szellőzés-, klímarendszer
- Alumínium mennyezeti kábelcsatornák
- Gyors szerelhetőség, hosszú élettartam
Szállítás és helyszíni telepítés
| Paraméter | Capsulove megoldás | Előny |
|---|---|---|
| Konténer-kapacitás | 40HQ: 5×18 m² modul vagy 4×25 m² egység | Kevesebb fuvar, alacsonyabb költség |
| Telepítés | 4–5 nap (4 fős csapattal) | Gyors nyitás/üzemindítás |
| Költségoptimalizálás | Lapra szerelt, ERSD hozzáférések | ≈70%-kal kedvezőbb logisztika |
| Nemzetközi | EU exkluzív, Dél-Afrika, Korea projektek | Bizonyított rendszer, skálázható |
Alkalmazási területek
Üdülő & vendéglátás
Prémium üdülővillák, butikhotel-szobák, privát vendéglakosztályok. Instagram-kompatibilis terek, galaxis ihlette fényélménnyel.
Lakó & közösségi
Lakóparkok, közösségi épületek, klubházak, irodák, klinikák, iskolai egységek – egy rendszer, végtelen kombináció.
Modellek és testreszabás
Több mint 10 alapmodell érhető el 1–4 hálószoba és emeletes opciókkal. A Capsulove modulok külső dizájnja, mérete és belső elrendezése teljesen személyre szabható, hogy a környezethez és a funkcióhoz tökéletesen illeszkedjen.
- 1–3 szintes kialakítások, lakó + kereskedelmi kombinációk
- Motoros ablakok, integrált elektromos lépcső opció
- ERSD: könnyű karbantartás, gyors csere
Miért ellenállhatatlan? – Exkluzív hozzáférés
Európában kizárólag a Kész Mobilházaknál érhető el a Capsulove moduláris rendszer. A kontinensen túl Dél-Afrikában és Koreában is futnak projektjeink – ez a nemzetközi tapasztalat garantálja Önnek a biztonságot, a minőséget és a skálázhatóságot.
Egyediség, amire büszke lehet: minden épületet az Ön márkájára, üzemeltetési folyamataira és vendégélményére hangolunk – a látványtól a karbantartásig.
Miért válassza a Capsulove-ot?
- Teljes testreszabás – homlokzat, belső, alaprajz
- Ultra gyors megvalósítás – napokban mérhető szerelés
- ERSD – rejtett gépészet, villámgyors szerviz
- Napelem-kompatibilis energiaelosztás
- Konténerre optimalizált szállítás
- EU exkluzivitás Kész Mobilházaknál
Kinek ajánljuk?
- Üdülőfejlesztőknek, birtok- és resort-tulajdonosoknak
- Airbnb / szobakiadás bővítéséhez
- Vállalati üdülők, tréning- és irodakomplexumok
- Gyorsan skálázható közösségi vagy oktatási terek
Küldetésünk
Forradalmasítani a házépítést: a klasszikus kivitelezést precíz gyári előkészítéssel és napok alatt elvégezhető helyszíni összeszereléssel váltjuk ki. Így az építési idő hónapokról napokra csökken, a minőség pedig konzisztens marad – minden modulnál.
Opcionális A:
Otthon stílusú bútorozási referencia

Opcionális B:
Teljes RGB világítás / lámpatest és egyedi bútorcsomag – csomagár

Miért piacvezető a CAPSULOVE?
A CAPSULOVE a moduláris lakhatás jövőjét hozza el forradalmi
Space House koncepciójával.
A legmodernebb formatervezés, az intelligens technológia és a megfizethető ár egyesítésével
új korszakot nyitunk a kompakt, fenntartható és stílusos otthonok világában.
Egy CAPSULOVE ház nem csupán egy épület –
egy új életforma, ahol minden négyzetcentiméter a kényelmet és a szabadságot szolgálja.
Amiért ügyfeleink minket választanak:
- Nincsenek rejtett költségek – Átlátható, előre kalkulált árak, meglepetések nélkül.
- Személyre szabott megoldások – Szakértői tervezőcsapatunk segít megalkotni a tökéletes, egyedi RGB moduláris kapszulaházat.
- Azonnal beköltözhető – Gyors és precíz telepítés, hogy Ön akár néhány napon belül birtokba vehesse új otthonát.
„A jövő otthona – ma.”
Új: „Szereld magad” csomag – milliókat spórolhatsz
A Capsulove mostantól „szereld magad” akcióban is elérhető: a komplett épület szétszerelve és gondosan becsomagolva érkezik, így a helyszíni összeállítást saját csapatoddal is elvégezheted – ezzel jelentős, akár több millió forintos megtakarítást érve el.
Mivel fókuszunk teljes európai országokra kiterjed, a logisztika és a költségek célországonként eltérhetnek. Jó hír, hogy ez a csomag Magyarországon is elérhető, így hazai projektekhez is ideális választás.
Kérjen exkluzív Capsulove ajánlatot
Beszéljük át a telek adottságait, a kívánt készültségi szintet és az üzemeltetési célokat – 48 órán belül testreszabott koncepciót és ütemtervet adunk.
Solar House Hungary Zrt. – Kész Mobilházak •
www.keszmobilhazak.hu •
info@keszmobilhazak.hu
Kp Sales House Kft Bemutatóterem: 2316. Tököl, Vince Tanya (ügyfélszolgálati iroda) Ügyfél referens: Horváth Zsolt Email:info@keszmobilhazak.hu Telefonszám: +36 / 70 353 5383 Facebook: https://www.facebook.com/keszmobilhazak