DI ALAKÚ 50M2-ES 2 HÁLÓSZOBÁS CAPSULOVE
- Kategória: modul mobilház
- Bruttó alapterület: 50 m²
- Szobák száma: 2
- Fürdők száma: 1
EXTRA FELSZERELTSÉG
- lapostető
- minimal otthon
- prémium ablakok
- prémium beltéri ajtók
- prémium burkolatok
- prémium inverteres hűtő-fűtő berendezés
PuzzleHome tudnivalók
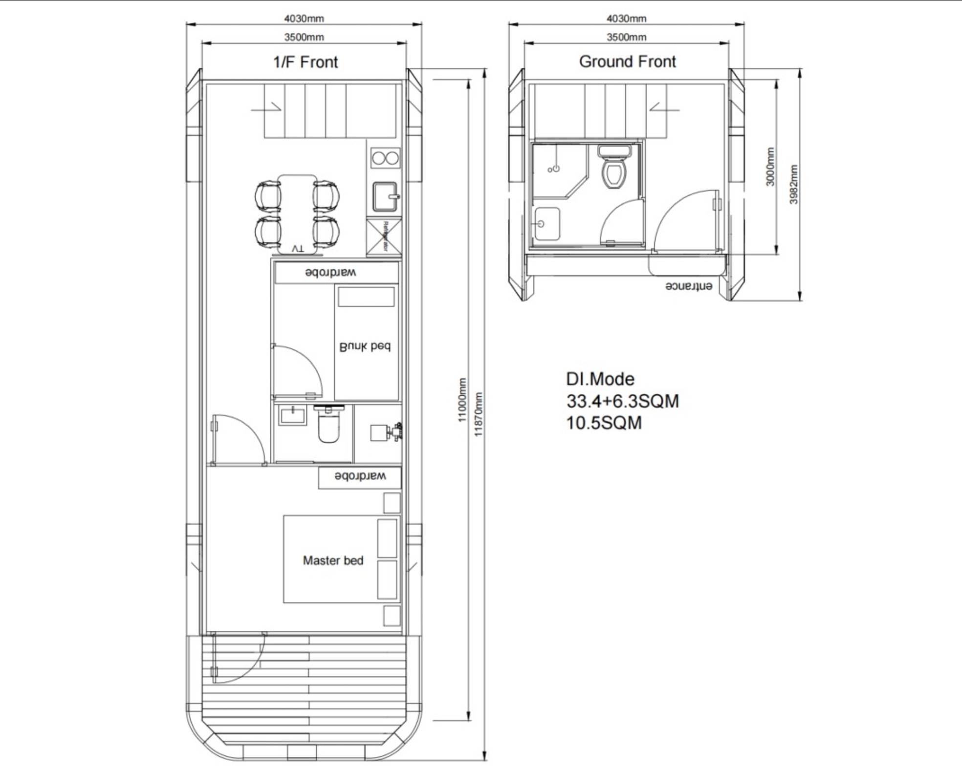
Capsulove DI alakú villa (50 m² • 2 hálószoba)
A Capsulove DI alakú villa a modern kompakt otthonok új szintje.
A 50 m²-es, két hálószobás kialakítás ideális azok számára, akik a funkcionalitást, a design-t és a mobilitást ötvözve keresnek hosszú távú megoldást.
A DI modell a Capsulove sorozat egyik legkedveltebb típusa – letisztult arányok, stabil acélszerkezet, prémium belső tér és gyors telepíthetőség jellemzi.
A ház alapját 3 mm vastag acél zártszelvény váz adja, amelyre EPS vagy kőzetgyapot szendvicspanel falrendszer kerül.
A falak és tetők hő- és hangszigetelése kiváló, a konstrukció pedig ellenáll a tájfun- és földrengésterhelésnek.
A belső tér gyárilag felszerelt világítással, konyhai kamrával, teljes fürdőmodullal és LED-vezérlő rendszerrel érkezik, így a helyszíni munkák minimálisak.
A külső homlokzat alumínium dekorációval és hangulatvilágítással teszi exkluzívvá a megjelenést.
Kiemelt jellemzők:
- 50 m²-es lakóterület, 2 hálószobás elrendezés
- Acél zártszelvény szerkezet (3 mm) – nagy szilárdság és stabilitás
- EPS vagy kőzetgyapot szendvicspanel falak (75 mm hőszigeteléssel)
- Alumínium nyílászárók kétrétegű LOW-E üvegezéssel (6+12A+6 mm)
- Tűzállóság: A osztály / 120 perc • Élettartam: 50 év
- Padló teherbírás: 3 kN/m² • Szélállóság: 0,6 kN/m²
- Szállítás: 1,8 szett / 40HQ konténer – konténerre optimalizált rendszer
- Gyári LED-vezérlés, kamra, belépő lépcső, sötétítő függönyök
Méretek és szerkezeti adatok
| Paraméter | Érték |
|---|---|
| Külső méret | H 12,0 m × Sz 4,0 m × M 6,6 m |
| Belső méret | H 11,0 m × Sz 3,5 m × M 2,5 m |
| Teljes tömeg | 7 500 kg |
| Teherhordó váz | Acél zártszelvény, 3 mm falvastagság |
| Válaszfalak | Acéllemez panel |
| Falrendszer | EPS / kőzetgyapot szendvicspanel, 75 mm szigeteléssel |
| Padló rétegrend | Acéllemez (3 mm) + szálcement lap (18 mm) + szőnyegpadló (15 mm) |
| Tető rétegrend | Acéllemez (3 mm) + EPS szendvics (50 mm) |
| Nyílászárók | Alumínium keret, dupla üveg (LOW-E, 6 mm + 12A + 6 mm) |
| Ajtók | Acél vagy üveg kivitel |
| Szélállóság | 0,6 kN/m² |
| Földrengésállóság | 7 fokozat |
| Tűzállóság | A osztály / 120 perc |
| Padló teherbírás | 3 kN/m² |
| Élettartam | 50 év |
| Szállítási egység | 1,8 szett / 40HQ konténer |
Felszereltség
- Kabin – 1 szett
- Külső alumínium dekoráció világítással – 1 szett
- Belső „home style” design világítással – 1 szett
- Zárható bejárati ajtó – 1 db
- 1 fürdőmodul (WC + zuhany + mosdó) – 1 szett
- LED vezérlő rendszer – 1 szett
- Kamra/pantry – 1 szett
- Belépő lépcső – 1 db
- Kézi sötétítő függönyök – 1 szett

A Capsulove DI alakú villa a prémium minőségű, mégis kompakt lakhatási megoldások mintapéldája.
Könnyen szállítható, gyorsan összeszerelhető, és akár 3–4 nap alatt beköltözhető.
Ideális nyaralóként, vendégházként vagy kisebb családi otthonként – ahol a kényelem és a modern design találkozik.
A modell konténerre optimalizált logisztikával és 50 év szerkezeti garanciával érkezik.
Több mint szállás – teljes értékű üdülőélmény
A CAPSULOVE-Stage házai nem egyszerű szálláshelyek, hanem egy új életstílus részei.
Minden részletük azt szolgálja, hogy a pihenés és a kényelem egyensúlyba kerüljön a természet közelségével.
Az üdülőkomplexum a klasszikus villáktól eltérően komplex szolgáltatásokat is kínál:
recepciós központ, hangulatos kávézó, modern edzőterem, panorámás hegyoldali étterem, elegáns irodák és exkluzív klubházak teszik teljessé az élményt.
Itt nem csupán megszállni lehet – itt élmény marad minden pillanat.

Capsulove – Egyedi moduláris házak és villák
Üzleti, üdülési és személyes célra tervezett, modern moduláris épületek, ahol a technológia és a természet harmóniája találkozik. A Capsulove rendszert Európában kizárólag a Kész Mobilházak kínálja – referenciáink a kontinensen túl Dél-Afrikában és Koreában is bizonyítottak.
Villámgyors logisztika: egy 40 lábas konténerben akár 5×18 m² modul, vagy 4×25 m² egység is szállítható. A lapra-szerelt megoldás a helyszíni szerelést napokra rövidíti és a szállítási költséget akár 70%-kal csökkenti.
Mit csinálunk
Testreszabható moduláris villákat, házakat és épületeket tervezünk és gyártunk – lakó- és kereskedelmi funkcióra egyaránt: üdülők, Airbnb, irodák, klinikák, iskolák, modern birtokfejlesztések.
Konténerre optimalizált rendszerünknek köszönhetően egy 40HQ egység teljes modulcsomagot képes szállítani. A megvalósítást kulcsrakészig támogatjuk: területrendezés, engedélyeztetés, vám, helyi szállítás, helyszíni szerelés.
Fő előnyök, röviden
- Teljesen testreszabható külső-belső
- Gyors telepítés: 4 fős csapat, jellemzően 4–5 nap
- ERSD – rejtett gépészet, gyors karbantartás
- Napelem-kompatibilis elektromos hálózat
- Okos világítás (hangvezérlés, RGB)
- Költséghatékony konténeres szállítás
Technológia – ERSD koncepció
Minden Capsulove modell az ERSD tervezési elv szerint készül: a cső- és kábelhálózat nem a falakban fut, hanem kivehető burkolat mögött, így a rendszer esztétikus, és a karbantartás/csere perc-pontosan végezhető. A külső díszítőelemek a design mellett a teljes gépészet védelmét is ellátják.
Okos világítás & energia
- Előtelepített okos fényvezérlés, hangvezérlésre kész
- RGB/multiszín hangulatvilágítás
- Napelem-ready áramköri kiosztás
Komplett gépészet
- Előre telepített víz-, szellőzés-, klímarendszer
- Alumínium mennyezeti kábelcsatornák
- Gyors szerelhetőség, hosszú élettartam
Szállítás és helyszíni telepítés
| Paraméter | Capsulove megoldás | Előny |
|---|---|---|
| Konténer-kapacitás | 40HQ: 5×18 m² modul vagy 4×25 m² egység | Kevesebb fuvar, alacsonyabb költség |
| Telepítés | 4–5 nap (4 fős csapattal) | Gyors nyitás/üzemindítás |
| Költségoptimalizálás | Lapra szerelt, ERSD hozzáférések | ≈70%-kal kedvezőbb logisztika |
| Nemzetközi | EU exkluzív, Dél-Afrika, Korea projektek | Bizonyított rendszer, skálázható |
Alkalmazási területek
Üdülő & vendéglátás
Prémium üdülővillák, butikhotel-szobák, privát vendéglakosztályok. Instagram-kompatibilis terek, galaxis ihlette fényélménnyel.
Lakó & közösségi
Lakóparkok, közösségi épületek, klubházak, irodák, klinikák, iskolai egységek – egy rendszer, végtelen kombináció.
Modellek és testreszabás
Több mint 10 alapmodell érhető el 1–4 hálószoba és emeletes opciókkal. A Capsulove modulok külső dizájnja, mérete és belső elrendezése teljesen személyre szabható, hogy a környezethez és a funkcióhoz tökéletesen illeszkedjen.
- 1–3 szintes kialakítások, lakó + kereskedelmi kombinációk
- Motoros ablakok, integrált elektromos lépcső opció
- ERSD: könnyű karbantartás, gyors csere
Miért ellenállhatatlan? – Exkluzív hozzáférés
Európában kizárólag a Kész Mobilházaknál érhető el a Capsulove moduláris rendszer. A kontinensen túl Dél-Afrikában és Koreában is futnak projektjeink – ez a nemzetközi tapasztalat garantálja Önnek a biztonságot, a minőséget és a skálázhatóságot.
Egyediség, amire büszke lehet: minden épületet az Ön márkájára, üzemeltetési folyamataira és vendégélményére hangolunk – a látványtól a karbantartásig.
Miért válassza a Capsulove-ot?
- Teljes testreszabás – homlokzat, belső, alaprajz
- Ultra gyors megvalósítás – napokban mérhető szerelés
- ERSD – rejtett gépészet, villámgyors szerviz
- Napelem-kompatibilis energiaelosztás
- Konténerre optimalizált szállítás
- EU exkluzivitás Kész Mobilházaknál
Kinek ajánljuk?
- Üdülőfejlesztőknek, birtok- és resort-tulajdonosoknak
- Airbnb / szobakiadás bővítéséhez
- Vállalati üdülők, tréning- és irodakomplexumok
- Gyorsan skálázható közösségi vagy oktatási terek
Küldetésünk
Forradalmasítani a házépítést: a klasszikus kivitelezést precíz gyári előkészítéssel és napok alatt elvégezhető helyszíni összeszereléssel váltjuk ki. Így az építési idő hónapokról napokra csökken, a minőség pedig konzisztens marad – minden modulnál.
Opcionális A:
Otthon stílusú bútorozási referencia

Opcionális B:
Teljes RGB világítás / lámpatest és egyedi bútorcsomag – csomagár

Miért piacvezető a CAPSULOVE?
A CAPSULOVE a moduláris lakhatás jövőjét hozza el forradalmi
Space House koncepciójával.
A legmodernebb formatervezés, az intelligens technológia és a megfizethető ár egyesítésével
új korszakot nyitunk a kompakt, fenntartható és stílusos otthonok világában.
Egy CAPSULOVE ház nem csupán egy épület –
egy új életforma, ahol minden négyzetcentiméter a kényelmet és a szabadságot szolgálja.
Amiért ügyfeleink minket választanak:
- Nincsenek rejtett költségek – Átlátható, előre kalkulált árak, meglepetések nélkül.
- Személyre szabott megoldások – Szakértői tervezőcsapatunk segít megalkotni a tökéletes, egyedi RGB moduláris kapszulaházat.
- Azonnal beköltözhető – Gyors és precíz telepítés, hogy Ön akár néhány napon belül birtokba vehesse új otthonát.
„A jövő otthona – ma.”
Új: „Szereld magad” csomag – milliókat spórolhatsz
A Capsulove mostantól „szereld magad” akcióban is elérhető: a komplett épület szétszerelve és gondosan becsomagolva érkezik, így a helyszíni összeállítást saját csapatoddal is elvégezheted – ezzel jelentős, akár több millió forintos megtakarítást érve el.
Mivel fókuszunk teljes európai országokra kiterjed, a logisztika és a költségek célországonként eltérhetnek. Jó hír, hogy ez a csomag Magyarországon is elérhető, így hazai projektekhez is ideális választás.
Kérjen exkluzív Capsulove ajánlatot
Beszéljük át a telek adottságait, a kívánt készültségi szintet és az üzemeltetési célokat – 48 órán belül testreszabott koncepciót és ütemtervet adunk.
Solar House Hungary Zrt. – Kész Mobilházak •
www.keszmobilhazak.hu •
info@keszmobilhazak.hu
Kp Sales House Kft Bemutatóterem: 2316. Tököl, Vince Tanya (ügyfélszolgálati iroda) Ügyfél referens: Horváth Zsolt Email:info@keszmobilhazak.hu Telefonszám: +36 / 70 353 5383 Facebook: https://www.facebook.com/keszmobilhazak
